32052
Herford
Top-gepflegte und vermietete Eigentumswohnung als Kapitalanlage, direkt am Herforder Stadt-Wall!
319.000 €
2
3
2
Diese äußerst gepflegte und gut vermietete Eigentumswohnung befindet sich im Dachgeschosse eines niveauvollen 6-Parteienhauses, das mit liebevoll angelegtem, top gepflegten Garten im Stadtzentrum von Herford eine besondere Investitionsmöglichkeit darstellt.
Die Immobilie eignet sich perfekt als Kapitalanlage und besteht rechtlich aus 2 getrennten Grundbuchblättern (d. h. es handelt sich um zwei zusammengelegte Wohnungen). Diese Zusammenlegung kann mit minimalem baulichen Aufwand rückgängig gemacht werden, sollten sich Lebensumstände ändern oder um auf entsprechende Nachfrage am Wohnungsmarkt reagieren zu können.
Im Herzen der Herforder Innenstadt, auf dem Wall gelegen mit direkter Möglichkeit zu Spaziergängen oder Radtouren in den Grünanlagen vom hauseigenen Garten aus. Alternativ schnell per PKW oder ÖPNV zu den gewünschten Zielen der Umgebung unterwegs.
Alle Nahversorgungseinrichtungen, Ärzte, Apotheken, Schule, Kita, Banken und weitere Geschäfte des täglichen Bedarfs sind fußläufig zu erreichen. Sofern PKWs vorhanden sind, stehen diese sicher in den beiden dazugehörigen Garagen. Die Wohnung(en) können bequem mit dem im Jahre 2009 nachgerüsteten Aufzug erreicht werden und bieten sich daher auch für ältere Personen an.
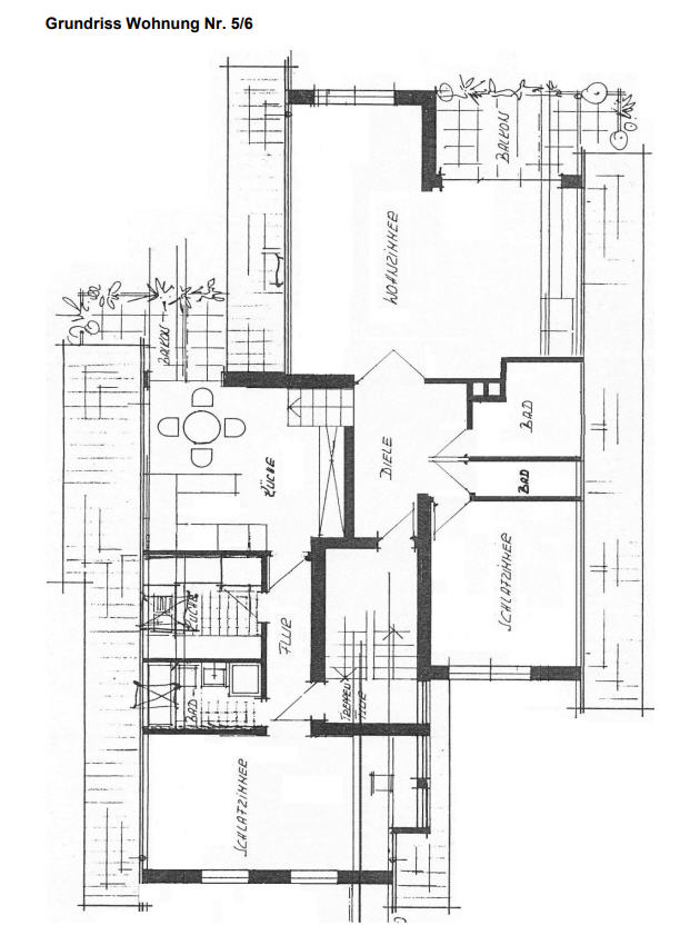
Die Wohnung(en) teilten sich wie folgt auf: ETW Nr. 6 (ca. 98 m²) Flur, Schlafzimmer, Bad, Wohnzimmer mit Zugang auf den schönen, wallseitig gelegenen Balkon, Treppe in die zweite Ebene und die offene Wohnküche, diese ebenfalls mit Zugang auf einen kleinen Südbalkon; Durchgang (Flur) zu ETW Nr. 5: (ca. 39 m³), Duschbad, Ankleide (Küche 2. Wohnung), großes Kinderzimmer mit Zugang auf den nordseitigen Balkon.
Zwei Kellerräume gehören ebenfalls dazu. Ein Wasch-/Trockenkeller ist vorhanden und wird gemeinschaftlich genutzt.
Die Wohnung(en) sind fest vermietet. Die Jahresmiete beträgt 14.400 EUR (1.200 EUR mtl.).
Das Hausgeld beträgt z. Zt. monatlich für ETW 5 = 247 EUR und für ETW 6 = 534 EUR.
Die Beheizung der Liegenschaft erfolgt über eine 2015 eingebaute, sorgfältig gewartete Gas-Brennwert-Heizung. Die Warmwasserversorgung erfolgt über Durchlauferhitzer. Beide Wohnungen befinden sich in einem sehr gepflegten Gesamtzustand. Alle erforderlichen Erhaltungsmaßnahmen wurden eigentümerseits stets umgehend vorgenommen, weshalb sich die Gesamt-Liegenschaft ebenfalls in einem sehr guten Zustand zeigt.
Wir weisen darauf hin, dass die Pottharst GmbH & Co. KG Verwalterin dieser Liegenschaft ist.
Die Immobilie eignet sich perfekt als Kapitalanlage und besteht rechtlich aus 2 getrennten Grundbuchblättern (d. h. es handelt sich um zwei zusammengelegte Wohnungen). Diese Zusammenlegung kann mit minimalem baulichen Aufwand rückgängig gemacht werden, sollten sich Lebensumstände ändern oder um auf entsprechende Nachfrage am Wohnungsmarkt reagieren zu können.
Im Herzen der Herforder Innenstadt, auf dem Wall gelegen mit direkter Möglichkeit zu Spaziergängen oder Radtouren in den Grünanlagen vom hauseigenen Garten aus. Alternativ schnell per PKW oder ÖPNV zu den gewünschten Zielen der Umgebung unterwegs.
Alle Nahversorgungseinrichtungen, Ärzte, Apotheken, Schule, Kita, Banken und weitere Geschäfte des täglichen Bedarfs sind fußläufig zu erreichen. Sofern PKWs vorhanden sind, stehen diese sicher in den beiden dazugehörigen Garagen. Die Wohnung(en) können bequem mit dem im Jahre 2009 nachgerüsteten Aufzug erreicht werden und bieten sich daher auch für ältere Personen an.
Die Wohnung(en) teilten sich wie folgt auf: ETW Nr. 6 (ca. 98 m²) Flur, Schlafzimmer, Bad, Wohnzimmer mit Zugang auf den schönen, wallseitig gelegenen Balkon, Treppe in die zweite Ebene und die offene Wohnküche, diese ebenfalls mit Zugang auf einen kleinen Südbalkon; Durchgang (Flur) zu ETW Nr. 5: (ca. 39 m³), Duschbad, Ankleide (Küche 2. Wohnung), großes Kinderzimmer mit Zugang auf den nordseitigen Balkon.
Zwei Kellerräume gehören ebenfalls dazu. Ein Wasch-/Trockenkeller ist vorhanden und wird gemeinschaftlich genutzt.
Die Wohnung(en) sind fest vermietet. Die Jahresmiete beträgt 14.400 EUR (1.200 EUR mtl.).
Das Hausgeld beträgt z. Zt. monatlich für ETW 5 = 247 EUR und für ETW 6 = 534 EUR.
Die Beheizung der Liegenschaft erfolgt über eine 2015 eingebaute, sorgfältig gewartete Gas-Brennwert-Heizung. Die Warmwasserversorgung erfolgt über Durchlauferhitzer. Beide Wohnungen befinden sich in einem sehr gepflegten Gesamtzustand. Alle erforderlichen Erhaltungsmaßnahmen wurden eigentümerseits stets umgehend vorgenommen, weshalb sich die Gesamt-Liegenschaft ebenfalls in einem sehr guten Zustand zeigt.
Wir weisen darauf hin, dass die Pottharst GmbH & Co. KG Verwalterin dieser Liegenschaft ist.
Teilen auf
Objektangaben
Objektnummer:0-110010839
Wohnfläche:137,00 m²
Grundstücksfläche:707,00 m²
Zimmer:3,0
Badezimmer:2,0
Balkone:3,0
Stellplätze:2,0
Kosten
Kaufpreis:319.000 €
Käuferprovision: 3,570 %
Ausstattung
Baujahr:1981
Ausweistyp:Verbrauch
Energieträger:Erdgas
Effizienzklasse:E
Gültig bis:13.08.2028
Endenergieverbrauch:147.3 kWh/(m²*a)
Baujahr:1981
- A+
- A
- B
- C
- D
- E
- F
- G
- H
0255075100125150175200225250
147,30 kWh/(m²*a)
Ihre Anfrage
* Pflichtfelder




