32052
Herford
Attraktive und vielseitig nutzbare Gewerbefläche in der Herforder Innenstadt!
1.400 €
5
4
0
Modernes Ladengeschäft mit geschmackvoller, hochwertiger Ausstattung inmitten der Herforder Innenstadt. Sowohl Einzelhändler als auch Dienstleistungsunternehmen finden hier einen interessanten Standort und ein repräsentatives Arbeitsumfeld.
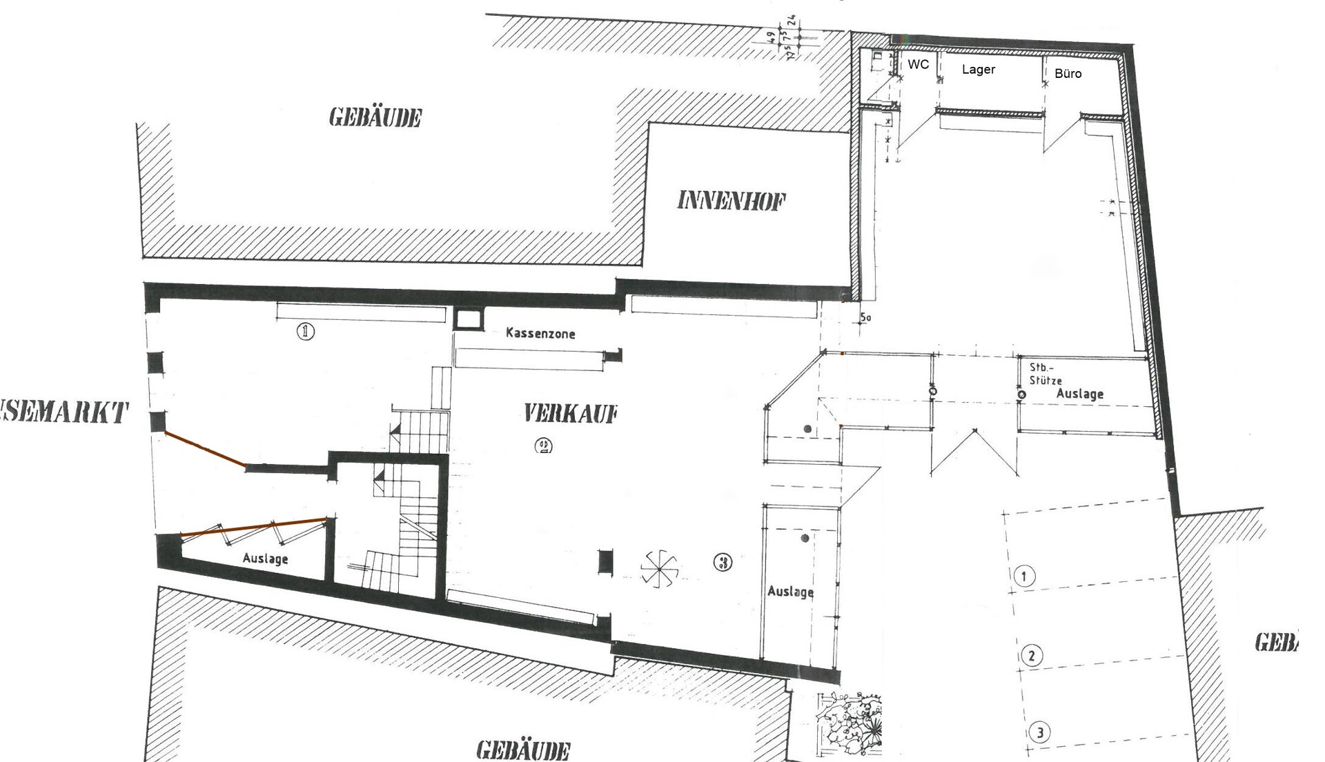
Ca. 300 m² Nutzfläche (davon ca. 100 m² klimatisiert) auf 2 versetzen Ebenen mit 2 ebenerdigen Eingängen und ca. 18 lfm. Schaufensterfront.
Die hintere Verkaufsfläche ist durch die komplett verglasten Seiten- und z.T. Dachfläche (mit Beschattungsanlage) lichtdurchflutet. Darüber hinaus gehören 1 kleiner Büroraum und 2 Toiletten sowie 1 großer Verkaufsraum (ca. 30 m² Nutzfläche) im Souterrain zu dieser Einheit.
Eine Beleuchtungsanlage ist vorhanden. Die Beheizung erfolgt über eine moderne Zentral-Brennwertkesselanlage. Eine separate Schauvitrine bietet weitere Präsentationsmöglichkeiten.
Das Ladenlokal befindet sich im Herzen von Herford, direkt in der Innenstadt. Diese zentrale Lage bietet hervorragende Sichtbarkeit und eine gute Fußgängerfrequenz. Die Umgebung ist geprägt von einer Vielzahl an Einkaufsmöglichkeiten, Cafés und Restaurants.
Bei der Miete handelt es sich um eine Staffelmiete, d.h. der Kaltmietpreis in Höhe von 1.400,00€ mtl. zzgl. Nebenkosten und MwSt. erhöht sich in den 3 Folgejahren um jeweils 0,50€/m². Im Mietpreis enthalten sind 5 PKW-Stellplätze je 35,00€ / Stück.
Eine Übernahme kann zum 01.08.2026 erfolgen. Der Energieausweis befindet sich in Vorbereitung und liegt zur Besichtigung vor.
Teilen auf
Objektangaben
Objektnummer:2026-145
Gesamtfläche:300,00 m²
Zimmer:4,0
Stellplätze:5,0
Kosten
Kaltmiete:1.400 €
Heizkosten enthalten:Nein
Provisionspflichtig:Nein
Kaution:4.200 €
Mietpreis Stellplatz:35 €
Ausstattung
Zustand:Gepflegt
Baujahr:1800
Kategorie:Standard
Gäste-WC:1
Boden:Teppich, Kunststoff
Unterkellert:Teilweise
Energieträger:Erdgas_leicht
Baujahr:1800
Ihre Anfrage
* Pflichtfelder
















